Leave a Message

Thank you for your message. I will be in touch with you shortly.

Explore Our Properties

Property Description

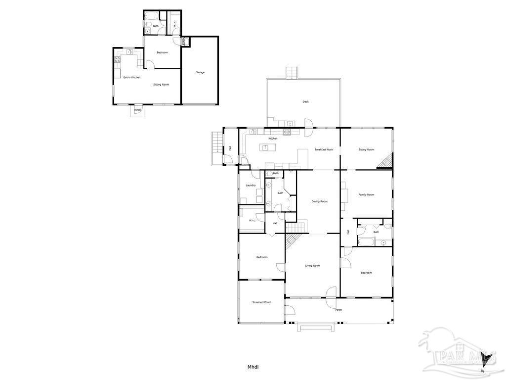
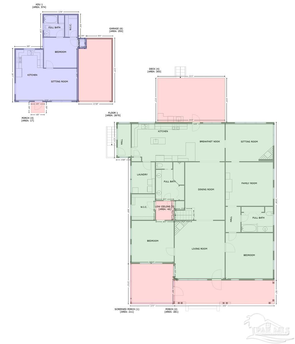
1918 Charm, 2021 Amenities in this beautifully restored Craftsman home located on East Blount Street in Pensacola's sought-after East Hill Community. Enter a grand formal living room, setting an immediate feeling of comfortable elegance boasting gas fireplace with mantel, original hardwood flooring, high ceilings, and crown moldings. The living room is flanked by two guest bedrooms, one of which has an ensuite bath and huge walk-in closet perfect as a downstairs primary bedroom. The family room is 14x16 with an elaborately crafted built-in bookcase and entertainment center. The exquisite formal dining room has high ceilings encased with fine art and crown-moulding lighting and chair rail. The kitchen has been updated with new flooring, appliances and granite countertops with undermount sink, reverse osmosis water, and island/prep sink and power. There is a mudroom and laundry area complete with washer/dryer, icemaker and wine cooler. A quaint breakfast area overlooking a covered deck adjoins the Office/Study area creating a seamless space for reading, home office or relaxing by the fireplace. The second level, currently used as the primary suite, contains approximately 1182 SF with a configuration for bedroom, large sitting area, and huge closet with built-ins. The ensuite bath has double vanity, walk-in shower, and a freestanding soaker tub that is the center piece for this capacious bathroom. The detached guest house is furnished with 540 SF comprised of living/dining area, kitchen, separate bedroom with ensuite bath. The one-car garage has a storeroom/garden shed and accessible attic space. The exceptionally well-maintained yard has mature landscaping, meandering walkway, three paved guest parking spaces, and privacy fence. The 16x24 covered deck has an outdoor kitchen with grill, sink, and fridge. Other amenities include plantation shutters throughout, whole house generator, alarm system, soft water filtration on the main house, and landscape lighting.

Overview

Property Status
Sold
Lot Size
0.4 Acres
MLS ID
655530
Property Type
Residential
Year Built
1918

Features & Amenities

Architecture Styles
Craftsman
Stories
2
Garage Spaces
1.0
Water Source
Public
Utilites
Cable Available
Pool
None
Roof
Metal
Lot Features
Central Access, Interior Lot
Parking
Garage, Detached, Front Entrance, Guest, RV/Boat Parking, Garage Door Opener
Heat Type
Multi Units
Air Conditioning
Multi Units, Central Air, Ceiling Fan(s)
Other Interior Features
Storage, Baseboards, Ceiling Fan(s), Chair Rail, Crown Molding, High Ceilings, High Speed Internet, Recessed Lighting, Walk-In Closet(s), Guest Room/In Law Suite, Office/Study
Sewer
Grinder Pump, Public Sewer
Substructure
Off Grade, Pillar/Post/Pier
Security Features
Security System, Smoke Detector(s)
Other Exterior Features
Outdoor Kitchen, Sprinkler, Rain Gutters
Elementary School
Oj Semmes
Middle School
Workman
High School
Pensacola
Sales Price
$1,200,000

Downloads

1735 E Blount St

Schedule a Tour

I would love to help you see this beautiful home! As a full-service real estate agent, I can assist you with a tour. Please submit an offer, and I will be happy to answer any questions you have about the buying process.

Enter a valid email

Thank you

for your interest in 1735 E Blount St, Pensacola, FL 32503

back to page
1735 E Blount St
Navigate

I'm Interested In

1735 E Blount St

or
  • CallG. Jeff White

    License #BK147454

    (850) 712-6003
  • Browse My

    Current Listings

    Highlights of successful past sales, showcasing years of consistent performance.

    • 10 Pickens Ave For Sale

      $674,900

      10 Pickens Ave, Pensacola, FL 32503

    • 10 Pickens Ave For Sale

      $674,900

      10 Pickens Ave, Pensacola, FL 32503

      • 4 Beds
      • 2 Baths
      • 2,528 Sq.Ft.
    • 111 Country Club Rd For Sale

      $574,900

      111 Country Club Rd, Pensacola, FL 32507

      • 5 Beds
      • 4 Baths
      • 3,350 Sq.Ft.
    • 3117 Albert Ct For Sale

      $324,900

      3117 Albert Ct, Pensacola, FL 32504

      • 4 Beds
      • 2 Baths
      • 1,562 Sq.Ft.
    • 2562 Trailwood Dr For Sale

      $239,900

      2562 Trailwood Dr, Cantonment, FL 32533

      • 2 Beds
      • 1 Bath
      • 864 Sq.Ft.
    • 6503 College Dr For Sale

      $224,900

      6503 College Dr, Milton, FL 32570

      • 3 Beds
      • 2 Baths
      • 1,215 Sq.Ft.
    • 129 Manchester St Active Under Contract

      $174,900

      129 Manchester St, Pensacola, FL 32507

      • 2 Beds
      • 2 Baths
      • 1,292 Sq.Ft.
    • 3100 Mason Rd Pending

      $29,500

      3100 Mason Rd, Walnut Hill, FL 32568

    View All

    Follow Us On Instagram